Imagine 97

Probabil cel mai ieftin apartament de 2 camere de la Eroii Revolutiei

ID: P261916 Bucuresti, Eroii Revolutiei 43
69.700€
Descriere
Nu ai nevoie de multe fotografii ca sa intelegi un lucru: acest apartament trebuie renovat complet.

Si exact aici este oportunitatea.

Vorbim despre un apartament de 2 camere, probabil la unul dintre cele mai mici preturi din zona Eroii Revolutiei pentru acest tip de proprietate. Nu platesti finisaje facute de altcineva. Il faci exact cum vrei tu.

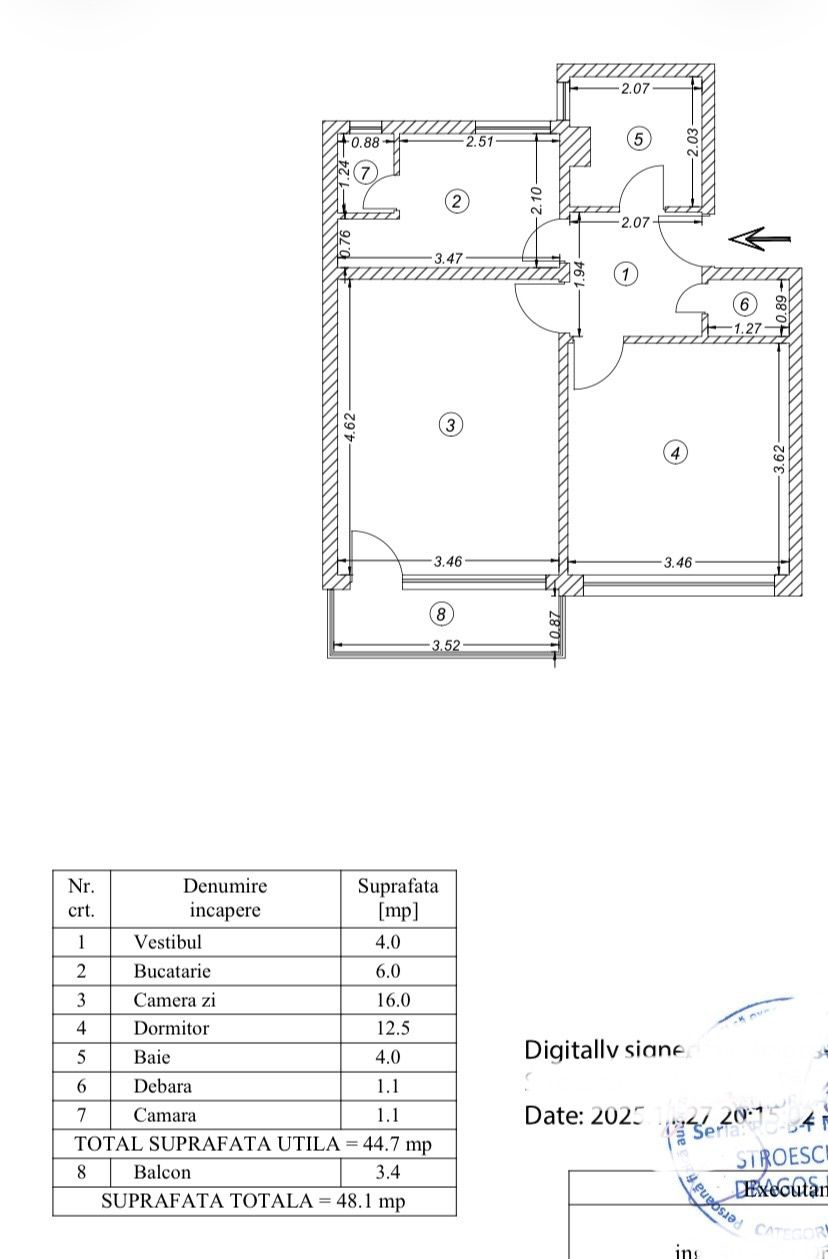
Compartimentarea este clasica, fara modificari, ceea ce inseamna ca il poti reconfigura exact cum vrei. Se poate achizitiona inclusiv cu credit ipotecar.

Imobilul este construit la inceputul anilor ’60, neexpertizat pentru risc seismic. Apartamentul este situat la etajul 7 din 7, iar liftul ajunge pana la etajul 7. Scara este bine intretinuta.

Localizare: Strada Sura Mare, la aproximativ 5 minute de metrou Eroii Revolutiei. Accesul rapid catre metrou face ca zona sa fie constant cautata pentru inchiriere.

Acum intrebarea este simpla: cauti un apartament frumos… sau o investitie buna?
Caracteristici
  • ID:P261916
  • Nr. camere:2
  • Nr. dormitoare:1
  • S. utila:45.00 mp
  • S. balcoane:3.00 mp
  • S. terase:0.00 mp
  • S. utila totala:48.00 mp
  • S. construita:60.00 mp
  • Comp.:Decomandat
  • Confort:1
  • Etaj:Etaj 7
  • Nr. bucatarii:1
  • Nr. bai:1
  • Nr. balcoane:1
  • An constructie:1961
  • Structura:Beton
  • Tip imobil:Bloc
  • Regim inaltime:P+7
  • Orientare:Nord-Est
Specificatii
Curent
Apa
Canalizare
Gaz
Termoficare
Var
Faianta
Parchet
Gresie
Ferestre PVC
Usa intrare Metal
Usa interior Lemn
Debara
Bucatarie Nemobilata
Bucatarie Neutilata
Apometre
Nemobilat
Lift
Localizare
Ramona Ursu
Esti interesat de aceasta proprietate ?